Villa a schiera d'angolo in vendita

Lusciano, Via delle Viole
€ 450.000
Prezzo aggiornato
6 locali 6 locali
300 Mq 300 Mq
4 bagni 4 bagni

Villa a schiera d'angolo in vendita

Lusciano, Via delle Viole

Descrizione annuncio

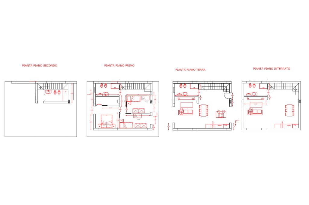
Ai confini con Aversa, in contesto residenziale riservato e in fase di qualificazione, proponiamo in vendita una villa di nuova costruzione dal linguaggio architettonico contemporaneo, concepita per offrire equilibrio tra estetica, funzionalità e qualità abitativa.

La proprietà si sviluppa su più livelli, con una distribuzione degli ambienti studiata per garantire comfort e coerenza progettuale. Il piano rialzato accoglie la zona giorno, composta da un salone di rappresentanza caratterizzato da ampie superfici vetrate che assicurano luminosità naturale e continuità visiva con l’esterno. Elemento distintivo della villa è il collegamento diretto tra il living e la piscina retrostante: dalla vetrata del salone, una scenografica scala conduce direttamente in acqua, creando un raffinato dialogo tra architettura e spazio esterno. Il cortile di pertinenza completa il livello, offrendo un’area funzionale e riservata.

Il primo piano è interamente dedicato alla zona notte, composta da tre camere da letto, tutte servite da balcone perimetrale che avvolge il piano, valorizzando luce, ariosità e affacci. La distribuzione interna è pensata per garantire privacy e comfort quotidiano.

Al livello superiore si sviluppa un esclusivo solarium, concepito come ulteriore ambiente living all’aperto, ideale per momenti di relax in totale riservatezza. Il piano è servito da bagno dedicato, a supporto della piena fruibilità dello spazio.

Il piano seminterrato ospita un’ampia taverna, ambiente versatile e personalizzabile, adatto a molteplici destinazioni d’uso, dalla zona intrattenimento allo spazio multifunzionale per esigenze familiari.

La recente realizzazione assicura standard costruttivi elevati, efficienza energetica e dotazioni impiantistiche di ultima generazione. Una proposta immobiliare di assoluto rilievo, destinata a chi ricerca una residenza indipendente, moderna e distintiva, in posizione strategica a ridosso di Aversa.

Mostra tutto

Nelle vicinanze

Trasporto pubblico Trasporto pubblico
Aversa Ippodromo
Aversa Ippodromo
2,3 Km
Aversa Centro
Aversa Centro
2,6 Km
stazione di Aversa
stazione di Aversa
3,0 Km
1100
1100
2,3 Km
5561
5561
2,3 Km
Scuole Scuole
Istituto Comprensivo Statale di Lusciano
790 m
Scuole
840 m
Liceo Scientifico Enrico Fermi
1,2 Km
Facoltà di Ingegneria - Università degli studi della Campania Luigi Vanvitelli
1,3 Km
Scuola Media Statale Giovanni Pascoli
1,4 Km
Farmacia Farmacia
Farmacia Pisani
990 m
Parafarmacia Conad
1,0 Km
Farmacia
1,2 Km
Farmacia Dei Platani
2,4 Km
Ospedali Ospedali
Ospedale San Giuseppe Moscati
2,3 Km
Supermercati Supermercati
Conad
1,1 Km
Decò
1,5 Km
La Maddalena
1,5 Km
Markant
1,7 Km
Cremeria del Borgo
2,3 Km
Negozi Negozi
Frankie Shoes
1,7 Km
Petrella
1,7 Km
Prenatal
2,3 Km
Il Dolce Sapore
2,3 Km
Blue Moon
2,5 Km
Bar Bar
Bar
620 m
Bar Gabriele
1,0 Km
Palma
1,3 Km
Shark's Cafè
1,4 Km
Primo Cafè
1,5 Km
Ristoranti Ristoranti
Hera Hora Pizzeria
590 m
Fattoria Sociale Fuori di Zucca
1,1 Km
La Divina - Bakery
1,2 Km
Pedros
1,3 Km
Bocadillo 2.0
1,4 Km
Mostra tutto

Caratteristiche

Rif.:
61182638
Piano:
3 di 3 (Piano su più livelli)
Posti auto:
3
Balconi:
1
Terrazzi:
1
Camere da letto:
3
Mostra tutto
Prezzo Prezzo
€ 450.000
Rata mutuo Rata mutuo
€ 2.138 / mese
Spese annue Spese annue
€ 0
Proponi il tuo prezzoProponi il tuo prezzo
Immobile valutato con T·Valuta

Classe Energetica

A1
A1
A1
A1
A1
A1
A1
A1
A1
EP globale non rinnovabile:
222.00 kW h/m² anno
EP globale rinnovabile:
222.00 kW h/m² anno
EP invernale del fabbricato:
EP estiva del fabbricato:
Anno di costruzione:
2026
Riscaldamento:
Autonomo
Tipo impianto:
A radiatori
Tipo alimentazione:
Metano

Prezzo ridotto di €1 (10%%)

Ti interessa visionare l'immobile?

Fissa un appuntamento  Fissa un appuntamento

Richiedi informazioni

Clicca su Leggi per aprire l'informativa
* Questi campi sono obbligatori

Calcola il tuo mutuo

Semplice e senza impegno
Anticipo

( % )
Mutuo

( % )

pochi semplici passi

inserisci i tuoi dati
Questionario completato
Grazie per aver richiesto un appuntamento senza impegno con un nostro Consulente del Credito e Assicurativo.

Hai inserito correttamente tutti i dati necessari e a breve riceverai una e-mail con un link da convalidare per inviare i tuoi dati.
Affiliato
Fiducia Srlu
Via Garofano, 24 81031 Aversa (CE)

Il nostro staff


  • Immacolata Porzio
    Affiliata
Via Garofano, 24 81031 Aversa (CE)
Zona: Aversa
Mostra su mappa
Orari: Lunedì al Venerdì 9:00 - 13.00 / 16:00 - 19:30 Sabato 9:00 - 13:00
Affiliato
Fiducia Srlu
Via Garofano, 24 81031 Aversa (CE)

2026 Tecnocasa Franchising S.p.A. - P. IVA 08365160152 - Via Monte Bianco 60/A 20089 Rozzano (MI). Ogni agenzia ha un proprio titolare ed è autonoma. Privacy policy | Policy utilizzo | Cookie policy