Villa singola in vendita

Aversa, Via Solferino - Aversa Centro
€ 680.000
Prezzo aggiornato
10 locali 10 locali
232 Mq 232 Mq
4 bagni 4 bagni

Villa singola in vendita

Aversa, Via Solferino - Aversa Centro

Descrizione annuncio

Elegante villa esclusiva al centro di Aversa

A pochi passi da via Roma sorge questa raffinata villa, un'abitazione che conquista per la sua luminosità e per il fascino unico dato dal grande lucernaio centrale: una struttura scenografica che, grazie al pavimento vetrato, diffonde luce naturale in ogni livello della casa, creando un'atmosfera suggestiva e accogliente.

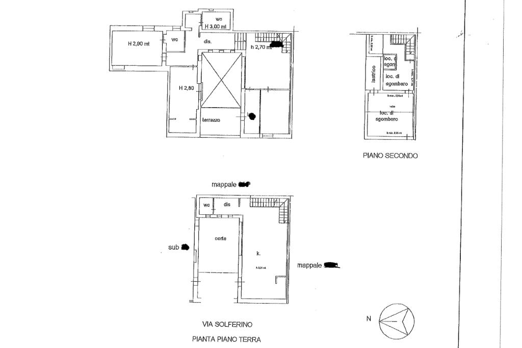
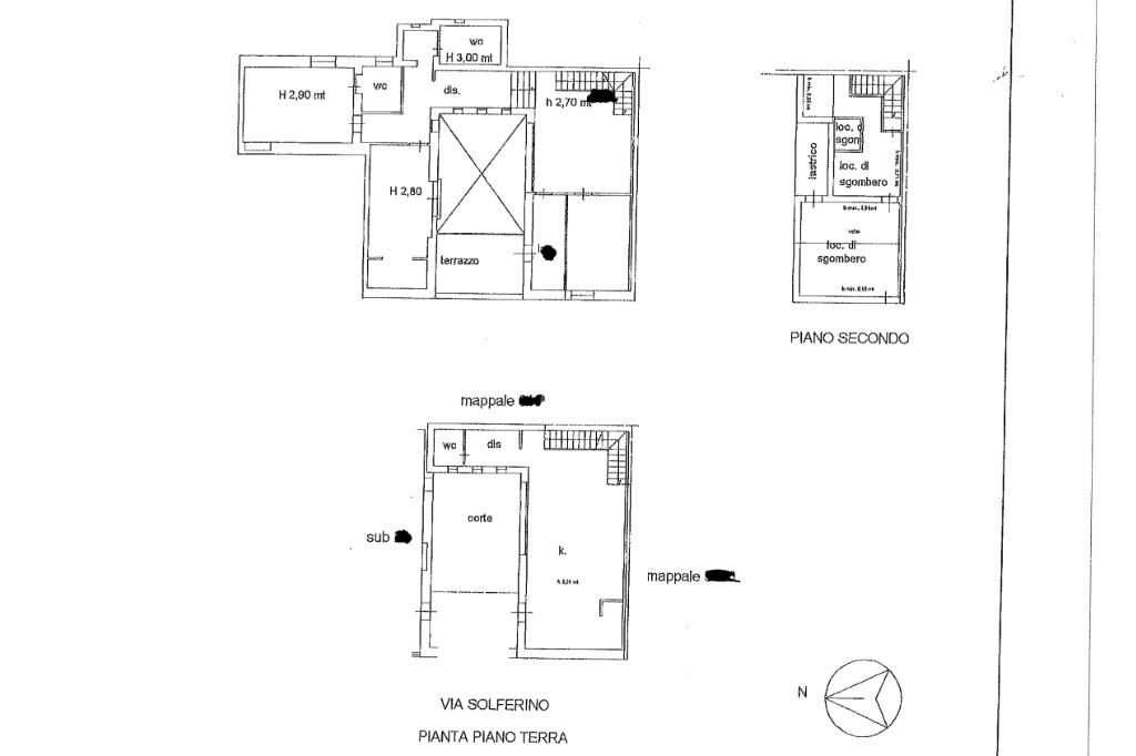
La proprietà si sviluppa su tre piani.

Al piano terra, un box auto di 30 mq e un passaggio coperto introducono alla zona living con affaccio diretto sul cortile centrale, composta da salone con cucina e un primo bagno a servizio dell'area giorno.

Al primo piano si apre la zona notte con tre camere matrimoniali - di cui una con bagno privato e una con cabina armadio, una confortevole lavanderia con accesso diretto a un comodo terrazzo riservato e un'ulteriore bagno padronale.

Il piano superiore accoglie invece attualmente una camera mansardata con bagno e balcone, ideale come spazio indipendente e intimo, piano adattabile ai propri usi.

Un'abitazione prestigiosa che unisce comfort, funzionalità e una posizione invidiabile nel cuore di Aversa, pronta ad essere già vissuta, perfetta per chi cerca un contesto elegante e al tempo stesso ricco di storia e servizi.

Ci troviamo in: Aversa (CE)

Via Armando Diaz 69-Via Arturo Garofano 24

392 37 52 965
393 49 23 421

FACEBOOK: Agenzia Tecnocasa Aversa
INSTAGRAM: tecnocasaaversa

Mostra tutto

Nelle vicinanze

Trasporto pubblico Trasporto pubblico
Aversa Centro
Aversa Centro
670 m
Aversa Ippodromo
Aversa Ippodromo
1,2 Km
stazione di Aversa
stazione di Aversa
1,0 Km
Trasporto pubblico
590 m
1100
1100
880 m
Scuole Scuole
Dipartimento di Ingegneria
270 m
Liceo Statale N. Jommelli
400 m
Liceo Artistico Statale L. Giordano
450 m
Scuola Media Statale Giovanni Pascoli
540 m
Scuole
570 m
Farmacia Farmacia
Farmacia
300 m
Farmacia Dei Platani
1,1 Km
Farmacia Lauro
1,1 Km
Farmacia Pisani
1,5 Km
Farmacia Cennamo
2,3 Km
Ospedali Ospedali
Ospedale San Giuseppe Moscati
1,4 Km
Supermercati Supermercati
Decò
750 m
La Maddalena
770 m
Sigma
1,2 Km
Markant
1,3 Km
Cremeria del Borgo
1,6 Km
Negozi Negozi
Frankie Shoes
350 m
Petrella
790 m
Il Dolce Sapore
860 m
Prenatal
970 m
Blue Moon
2,9 Km
Bar Bar
Jommelli Cafè
290 m
Square Cosmopolitan Bar
380 m
Bar Diaz
390 m
Il Baretto
400 m
Io Tu E Boh!?
460 m
Ristoranti Ristoranti
Street Burger
250 m
Rendez Vous
280 m
Costantino
350 m
Pizzeria da Castrese
360 m
Belvedere
400 m
Mostra tutto

Caratteristiche

Rif.:
61102857
Piano:
3 di 3 (Piano su più livelli)
Box:
1
Posti auto:
2
Balconi:
2
Terrazzi:
1
Mostra tutto
Prezzo Prezzo
€ 680.000
Rata mutuo Rata mutuo
€ 3.206 / mese
Spese annue Spese annue
€ 0
Proponi il tuo prezzoProponi il tuo prezzo

Classe Energetica

D
D
D
D
D
D
D
D
D
EP globale non rinnovabile:
222.00 kW h/m² anno
EP globale rinnovabile:
222.00 kW h/m² anno
EP invernale del fabbricato:
EP estiva del fabbricato:
Anno di costruzione:
2015
Riscaldamento:
Autonomo
Tipo impianto:
A radiatori
Tipo alimentazione:
Metano

Prezzo ridotto di €1 (6%%)

Ti interessa visionare l'immobile?

Fissa un appuntamento  Fissa un appuntamento

Richiedi informazioni

Clicca su Leggi per aprire l'informativa
* Questi campi sono obbligatori

Calcola il tuo mutuo

Semplice e senza impegno
Anticipo

( % )
Mutuo

( % )

pochi semplici passi

inserisci i tuoi dati
Questionario completato
Grazie per aver richiesto un appuntamento senza impegno con un nostro Consulente del Credito e Assicurativo.

Hai inserito correttamente tutti i dati necessari e a breve riceverai una e-mail con un link da convalidare per inviare i tuoi dati.
Affiliato
Fiducia Srlu
Via Garofano, 24 81031 Aversa (CE)

Il nostro staff


  • Immacolata Porzio
    Affiliata
Via Garofano, 24 81031 Aversa (CE)
Zona: Aversa
Mostra su mappa
Orari: Lunedì al Venerdì 9:00 - 13.00 / 16:00 - 19:30 Sabato 9:00 - 13:00
Affiliato
Fiducia Srlu
Via Garofano, 24 81031 Aversa (CE)

2026 Tecnocasa Franchising S.p.A. - P. IVA 08365160152 - Via Monte Bianco 60/A 20089 Rozzano (MI). Ogni agenzia ha un proprio titolare ed è autonoma. Privacy policy | Policy utilizzo | Cookie policy