Ufficio in vendita

Aversa, Via Nobel - Aversa Sud
€ 480.000
8 locali 8 locali
344 Mq 344 Mq
4 bagni 4 bagni

Ufficio in vendita

Aversa, Via Nobel - Aversa Sud

Descrizione annuncio

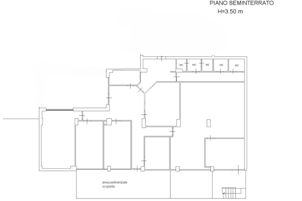
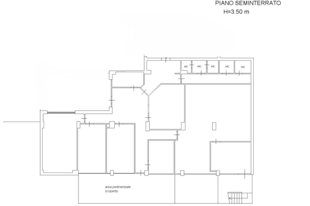
LOCALE COMMERCIALE A REDDITO – OPPORTUNITÀ DI INVESTIMENTO

Proponiamo in vendita locale commerciale situato al piano S1, attualmente locato, con una buona rendita, rappresentando una soluzione ideale per investitori alla ricerca di un immobile già produttivo e con redditività immediata.

L’immobile è stato oggetto di recente e completa ristrutturazione e si presenta in ottimo stato manutentivo, con ambienti moderni, funzionali e ben organizzati. Gli spazi interni sono razionalmente distribuiti e comprendono:

5 ampie sale operative,

1 sala riunioni,

1 sala convegni,

5 servizi igienici,

rampa d’accesso, che garantisce facilità di carico/scarico e accessibilità.

La configurazione degli ambienti rende il locale particolarmente adatto a molteplici destinazioni d’uso, quali studi professionali, poli direzionali, strutture sanitarie, centri di formazione o attività di servizi.

La presenza di un contratto di locazione in essere assicura continuità di reddito fin dal momento dell’acquisto, eliminando i tempi e i costi legati alla ricerca di un conduttore. L’ottimo stato dell’immobile consente inoltre di evitare interventi di manutenzione nel breve periodo, rendendo l’investimento ancora più sicuro e vantaggioso.

Soluzione ideale per chi desidera un investimento solido, stabile e a reddito, con un immobile rinnovato e già valorizzato.

Mostra tutto

Nelle vicinanze

Trasporto pubblico Trasporto pubblico
Aversa Ippodromo
Aversa Ippodromo
330 m
Aversa Centro
Aversa Centro
1,7 Km
stazione di Aversa
stazione di Aversa
1,6 Km
5561
5561
290 m
1100
1100
540 m
Ricariche auto elettriche Ricariche auto elettriche
Brasiello Carservice | EnelX
2,4 Km
Scuole Scuole
Scuola Paritaria "Avvenire Radioso"
180 m
Scuole
440 m
Istituto scolastico La Sala
1,1 Km
Dipartimento di Ingegneria
1,2 Km
Liceo Scientifico Enrico Fermi
1,4 Km
Farmacia Farmacia
Farmacia
1,2 Km
Farmacia Pisani
1,7 Km
Parafarmacia Conad
1,8 Km
Farmacia Lauro
1,9 Km
Farmacia Dei Platani
2,5 Km
Ospedali Ospedali
Ospedale San Giuseppe Moscati
420 m
Clinic center Hera
2,3 Km
Supermercati Supermercati
Decò
480 m
Conad
1,8 Km
SuperDay
1,9 Km
Sigma
2,0 Km
Lidl
2,1 Km
Negozi Negozi
Il Dolce Sapore
570 m
Frankie Shoes
1,4 Km
Petrella
2,2 Km
Prenatal
2,4 Km
Bar Bar
L'Etoile
1,2 Km
Primo Cafè
1,2 Km
La Meridiana
1,2 Km
Holdem Cafè
1,3 Km
La Nuit Cafè
1,3 Km
Ristoranti Ristoranti
Ristoranti
180 m
Fratelli la Bufala Aversa
1,1 Km
Rendez Vous
1,2 Km
La Bouletta
1,3 Km
Pizzeria da Felice
1,3 Km
Mostra tutto

Caratteristiche

Rif.:
61174523
Piano:
Seminterrato di 3 con ascensore
Totale piani:
3
Posti auto:
1
Condizionamento:
Autonomo
Ascensore:
Mostra tutto
Prezzo Prezzo
€ 480.000
Rata mutuo Rata mutuo
€ 2.280 / mese
Spese annue Spese annue
€ 1.320
Proponi il tuo prezzoProponi il tuo prezzo

Altre caratteristiche

Descrizione dei locali
Bagno antibagno

Classe Energetica

A1
A1
A1
A1
A1
A1
A1
A1
A1
EP globale non rinnovabile:
47.00 kW h/m² anno
EP globale rinnovabile:
47.00 kW h/m² anno
EP invernale del fabbricato:
EP estiva del fabbricato:
Anno di costruzione:
2000
Riscaldamento:
Autonomo
Tipo impianto:
Ad aria
Tipo alimentazione:
Aria

Ti interessa visionare l'immobile?

Fissa un appuntamento  Fissa un appuntamento

Richiedi informazioni

Clicca su Leggi per aprire l'informativa
* Questi campi sono obbligatori

Calcola il tuo mutuo

Semplice e senza impegno
Anticipo

( % )
Mutuo

( % )

pochi semplici passi

inserisci i tuoi dati
Questionario completato
Grazie per aver richiesto un appuntamento senza impegno con un nostro Consulente del Credito e Assicurativo.

Hai inserito correttamente tutti i dati necessari e a breve riceverai una e-mail con un link da convalidare per inviare i tuoi dati.
Affiliato
Fiducia Srlu
Via Garofano, 24 81031 Aversa (CE)

Il nostro staff


  • Immacolata Porzio
    Affiliata
Via Garofano, 24 81031 Aversa (CE)
Zona: Aversa
Mostra su mappa
Orari: Lunedì al Venerdì 9:00 - 13.00 / 16:00 - 19:30 Sabato 9:00 - 13:00
Affiliato
Fiducia Srlu
Via Garofano, 24 81031 Aversa (CE)

2026 Tecnocasa Franchising S.p.A. - P. IVA 08365160152 - Via Monte Bianco 60/A 20089 Rozzano (MI). Ogni agenzia ha un proprio titolare ed è autonoma. Privacy policy | Policy utilizzo | Cookie policy